Beschrijving
In het hart van het sfeervolle dorp Woudenberg staat aan de Middenstraat 36 deze charmante jaren ’20 twee-onder-één-kapwoning met zeer riante schuur/garage. Een huis met karakter, voorzien van authentieke details zoals houten luiken en een gezellige houtkachel, en met volop mogelijkheden voor de toekomst.
Wij nemen je graag mee door de woning. Via de royale oprit komen we aan bij entree van de woning. Vanuit de hal is er toegang tot de keuken met veel bergruimte. De woonkamer is aan de voorzijde gelegen, heeft grote raampartijen en een sfeervolle houtkachel. Op de begane grond vind je verder de slaapkamer met openslaande deuren naar het terras en een aangrenzende badkamer met douche, wastafel en toilet.
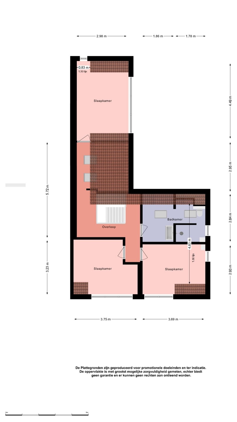
Op de eerste verdieping treffen we drie slaapkamers, alle voorzien van een dakkapel, en een moderne tweede badkamer met inloopdouche, wastafelmeubel en tweede toilet.
De woning is levensloopbestendig dankzij de aanwezigheid van een slaapkamer en badkamer op de begane grond. Daarnaast beschikt het perceel over een volledig geïsoleerde schuur/garage van ca. 125 m² met hoge puntkap – ideaal voor hobby, werk of extra bergruimte. De tuin is praktisch aangelegd en biedt veel privacy. Er is voldoende ruimte om op eigen terrein te parkeren. Achter de schuur ligt bovendien nog een extra tuin.
Kortom, opzoek naar die sfeervolle jaren ’20 woning die al deels is gemoderniseerd en je nog verder naar eigen smaak kunt inrichten? Schroom dan niet om te bellen met 033-2037040 want we laten je deze woning graag met eigen ogen zien!
Indeling
Entree, hal met toegang tot de keuken, woonkamer, slaapkamer en badkamer.
Eerste verdieping
Overloop met toegang tot drie slaapkamers en de tweede badkamer.
Tuin
Royale, diepe achtertuin met grote schuur en achterom.
Bijzonderheden
• Authentieke jaren ’20 details en warme uitstraling
• Volledig geïsoleerde schuur/garage van ca. 125 m²
• Slaapkamer en badkamer op de begane grond
• Veel privacy en buitenruimte, inclusief extra grond