Beschrijving
LET OP: Dit is een voormalige huurwoning die verkocht wordt door Woonstede. Deze woning wordt op dit moment uitsluitend verkocht aan huurders van een woningcorporatie, uit de Gemeente Ede of Scherpenzeel.
De verkoopperiode voor deze huurders duurt tot 1 mei 2025 voor de verkoop van deze woning gelden de volgende voorwaarden:
1. U bent huurder van een sociale huurwoning (van een woningcorporatie) en woonachtig in de Gemeente Ede of Scherpenzeel
2. Na koop van de woning komt uw huurwoning vrij voor verhuur
3. De woning wordt aangeboden tegen taxatiewaarde, bieden kan vanaf dit bedrag
4. De woning wordt verkocht aan de hoogste bieder
5. Als er voor bovengenoemde datum geen biedingen zijn ontvangen van huurders, dan wordt de woning opnieuw te koop aangeboden voor alle overige geïnteresseerden.
Wanneer bent u huurder van een sociale huurwoning?
1. U staat ingeschreven in de Gemeente Ede of Scherpenzeel
2. U huurt een woning of appartement van een woningcorporatie die valt binnen de huurgrenzen van sociale huur. Wilt u zeker weten of dit voor uw woning geldt, neem dan contact op met uw verhuurder.
3. Uw naam staat op het huurcontract
Wat is het voordeel?
• U heeft voorrang bij het inplannen van een bezichtigingsafspraak die u maakt met de verkopend makelaar;
Overige informatie
• In de koopovereenkomst wordt een zelfbewoningsplicht artikel opgenomen.
• De eigendomsoverdracht zal plaatsvinden bij één van de projectnotarissen: Van Putten en Van Apeldoorn, Posthuma Schutte of notaris.com
• Aanvaarding: uiterlijk 10 weken na mondelinge overeenstemming. BELANGRIJKE CLAUSULES IN DE KOOPOVEREENKOMST:
• Artikel Zelfbewoningplicht Koper verplicht zich tegenover Woonstede om de woning daadwerkelijk als hoofdbewoner te zullen bewonen.
• Artikel Niet zelf-bewoningsclausule / Feitelijk gebruik: Koper is ermee bekend dat verkoper het verkochte nooit zelf feitelijk heeft gebruikt en dat verkoper derhalve koper niet kan informeren over eigenschappen respectievelijk gebreken aan het verkochte waarvan verkoper op de hoogte zou kunnen zijn geweest als hij het verkochte zelf feitelijk had gebruikt
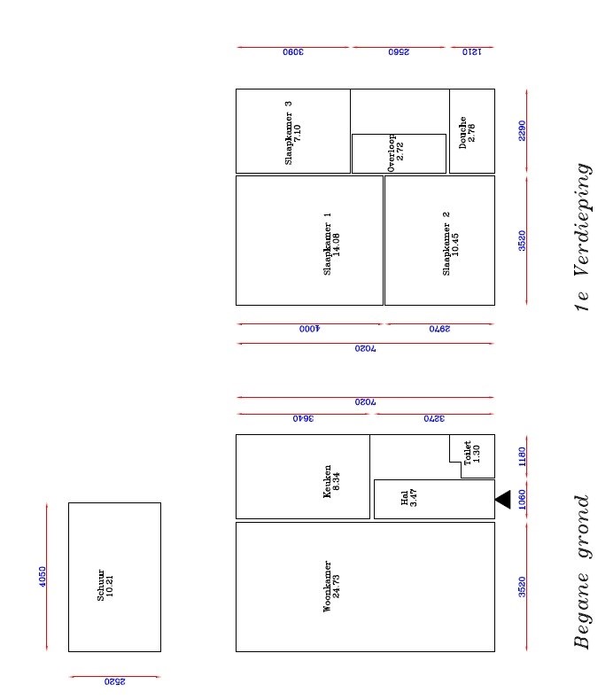
Indeling
Entree, hal met meterkast, toilet, trapopgang en toegang tot de woonkamer, keuken.
Eerste verdieping
Overloop met toegang tot drie slaapkamers en de badkamer.
Tweede verdieping
Bergzolder bereikbaar middels een vlizotrap.
Tuin
Zonnige tuin gelegen op het westen waar je heerlijk van de middag- en avondzon kunt genieten. Voorzien van een stenen berging en een achterom.
Bijzonderheden
• Eerst maand alleen beschikbaar voor huurders via woningstichting
• Het perceel oppervlakte betreft een geschat oppervlakte en zal nog door het kadaster ingemeten worden
• De niet zelf bewoningsclausule is van toepassing
• De ouderdomsclausule is van toepassing
• De as-if-where is clausule is van toepassing
• Projectnotaris Van Putten van Apeldoorn is van toepassing.