Beschrijving
Let op een afspraak maken is niet nodig. De kijkdagen zijn 21 en 22 januari 2026 tussen 15:00 en 17:00 uur kan je zonder afspraak binnen komen lopen.
Ben jij op zoek naar leuk en centraal gelegen hoekwoning met garage? Wil jij dicht bij het centrum wonen en wil jij een energielabel B dan is de Valkenhorst 17 de woning die je zeker moet komen bekijken.
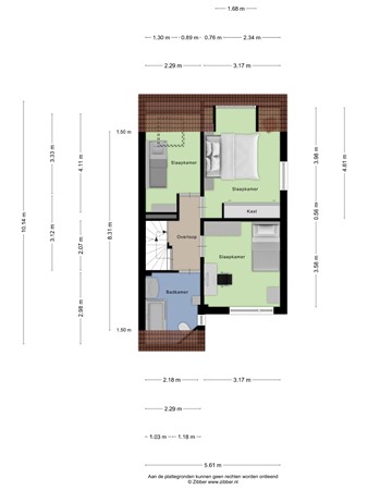
Wij nemen je graag mee door de woning. Via de entree kom je in de hal met het toilet en de meterkast. Loop je rechtdoor dan kom je in de ruime woonkamer. De woonkamer is straatgericht, maar aan de voorzijde is er een speeltuin en groenvoorziening gelegen waardoor je dus lekker vrij zit. Aan de achterzijde is de eethoek en de half open keuken met toegang tot de tuin. De tuin is op het zuiden gelegen, via een achterom bereikbaar en heeft een garage tot zijn beschikking.
Op de eerste verdieping is er een overloop met toegang tot de drie goede slaapkamers en badkamer met een ligbad (douche in bad), zwevend toilet en wastafel meubel. Via een vaste trap kom je de zolder met de voorzolder waar je de wasmachine en droger aansluiting vindt net als de cv ketel. Ook is op deze verdieping de vierde slaapkamer gerealiseerd.
Kortom ben jij op zoek naar een leuk gelegen hoekwoning, vind je het niet erg om de woning deels te moderniseren en wil jij dit voorjaar al in je eigen woning kunnen klussen? Dan zien wij je graag op de Valkenhorst 17 verschijnen.
Indeling
Hal, toilet, trapopgang, woonkamer en keuken.
Eerste verdieping
Overloop, badkamer, 3 slaapkamers
Tweede verdieping
Voorzolder met witgoedaansluitingen, slaapkamer.
Tuin
Tuin op het Zuiden. garage en heeft een achterom.
Bijzonderheden
- Garage
- Centraal gelegen
- Energielabel B
- Tuin op het Zuiden