Verkocht onder voorbehoud: Oranjgerie Bouwnummer 162, 3925 EB Scherpenzeel
Verkocht onder voorbehoud: Oranjgerie Bouwnummer 162, 3925 EB Scherpenzeel
Verkocht onder voorbehoud: Oranjgerie Bouwnummer 162, 3925 EB Scherpenzeel
Verkocht onder voorbehoud A+++

Oranjgerie Bouwnummer 162, 3925 EB Scherpenzeel

€ 749.950,- v.o.n.

De Nieuwe Koepel Fase 1c Halfvrijstaande woning

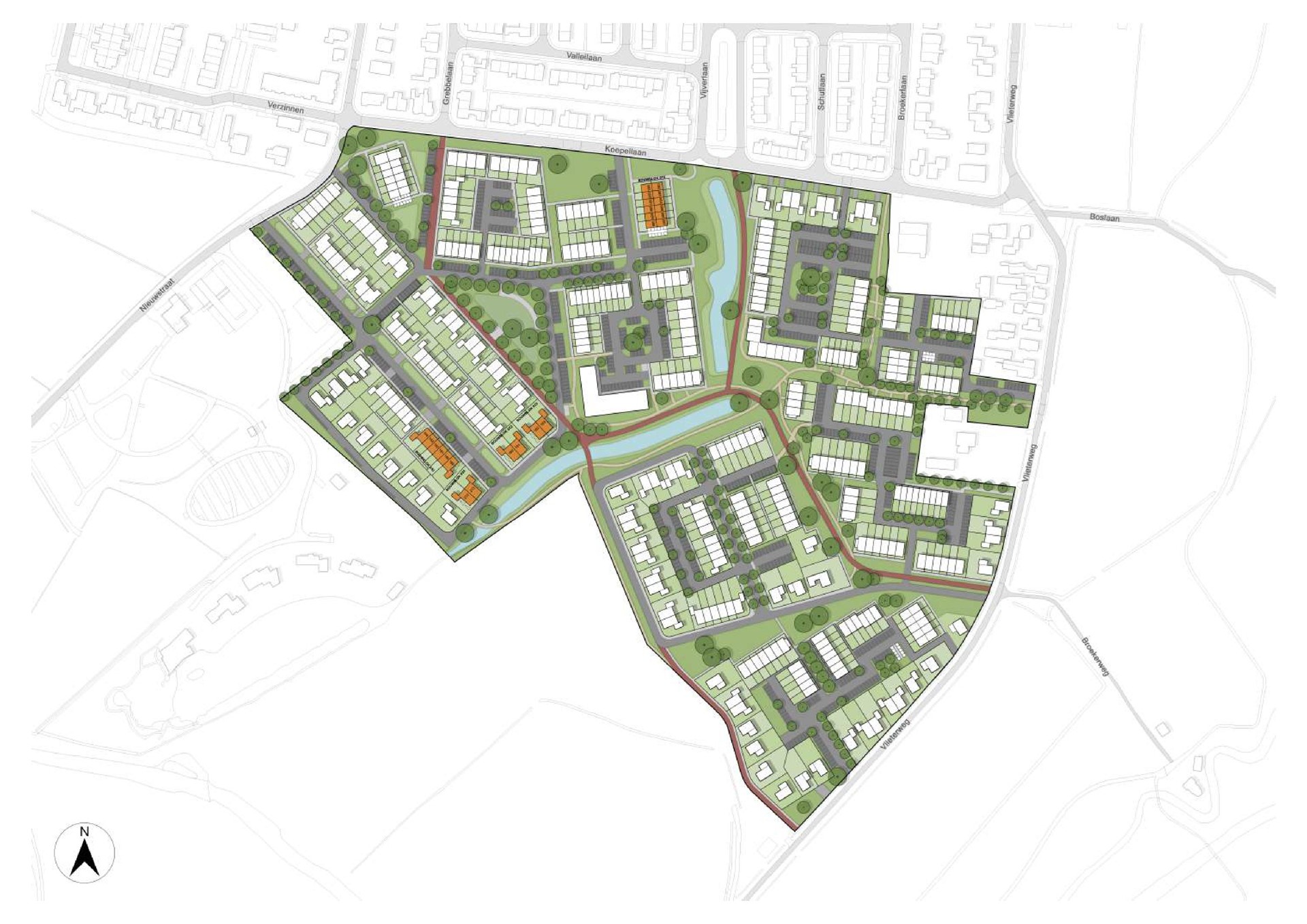
De Nieuwe Koepel
Aan de groene zuidzijde van Scherpenzeel wordt de nieuwbouwwijk De Nieuwe Koepel gerealiseerd. Het eerste deelgebied omvat grondgebonden woningen, variërend van hoek-, middenwoningen tot rug-aan-rug en halfvrijstaande woningen.

De wijk kenmerkt zich door de unieke combinatie...

Kenmerken

Type object Woonhuis, eengezinswoning, half vrijstaande woning
Bouwperiode 2026
Status Verkocht onder voorbehoud
Aangeboden sinds Woensdag 8 oktober 2025

Oranjgerie Bouwnummer 162 bekijken?

Wij plannen graag een bezichtiging met je in. Tijdens de bezichtiging vertelt een makelaar alles wat je wilt weten.