Verkocht onder voorbehoud: Jachthuis Bouwnummer 085, 3925 EB Scherpenzeel
Verkocht onder voorbehoud: Jachthuis Bouwnummer 085, 3925 EB Scherpenzeel
Verkocht onder voorbehoud: Jachthuis Bouwnummer 085, 3925 EB Scherpenzeel
Verkocht onder voorbehoud A+++

Jachthuis Bouwnummer 085, 3925 EB Scherpenzeel

€ 304.950,- v.o.n.

De Nieuwe Koepel Fase 1c Rug-aan-rug middenwoning

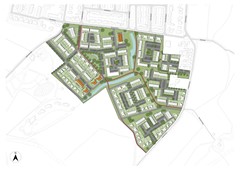
De Nieuwe Koepel
Aan de groene zuidzijde van Scherpenzeel wordt de nieuwbouwwijk De Nieuwe Koepel gerealiseerd. Het eerste deelgebied omvat grondgebonden woningen, variërend van hoek-, middenwoningen tot rug-aan-rug en halfvrijstaande woningen.

De wijk kenmerkt zich door de unieke combinatie...

Kenmerken

Type object Woonhuis, eengezinswoning, tussenwoning
Bouwperiode 2026
Status Verkocht onder voorbehoud
Aangeboden sinds Woensdag 8 oktober 2025

Jachthuis Bouwnummer 085 bekijken?

Wij plannen graag een bezichtiging met je in. Tijdens de bezichtiging vertelt een makelaar alles wat je wilt weten.