Beschrijving
LET OP! Een afspraak maken voor een bezichtiging is niet nodig. Je bent van harte welkom op maandag 19 januari en dinsdag 20 januari van 15.00-17.00uur zonder afspraak. Mocht dit niet lukken, laat het dan even weten dan kijken we naar een ander moment.
Starters opgelet! Er is een hele leuke, uitgebouwde tussenwoning, voorzien van dakkapellen en grote berging aan de Prinsenlaan beschikbaar!
Wij nemen je graag mee door de woning. Via de entree komen we in de hal met meterkast, het toilet, de trapkast, trapopgang en toegang tot de woonkamer en keuken. De woonkamer is straatgericht en voorzien van grote raampartijen waardoor het een heerlijk licht huis betreft. De keuken is geplaatst in de uitbouw en voorzien van een losse koelkast, vaatwasser, gaskookplaat, afzuigkap en oven. Vanuit de keuken is de achtertuin bereikbaar.
Op de eerste verdieping treffen we twee royale slaapkamers, de badkamer en een wasruimte. De badkamer is verplaatst bij deze woning (oorspronkelijk de wasruimte), waardoor deze ruim van formaat is.
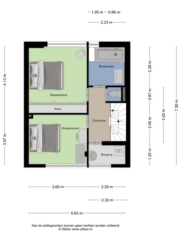
Op de tweede verdieping komen we op de voorzolder met CV-ketel (2021) welk toegang geeft tot nog eens twee extra slaapkamers. Dit is mogelijk doordat er zowel op de voorzijde, als achterzijde een dakkapel is geplaatst.
De achtertuin is gelegen op het zuiden en voorzien van een terras, royale berging en achterom. De tuin heeft nagenoeg geen inkijk omdat de achterburen op grote afstand zitten.
Kortom, kom snel kijken bij deze leuke uitgebouwde woning met dubbele dakkapel!
Indeling
Entree, hal met toilet, meterkast, trapopgang, toegang tot de woonkamer, keuken en achtertuin.
Eerste verdieping
Twee royale slaapkamers, de badkamer en een wasruimte.
Tweede verdieping
Voorzolder, twee slaapkamer met beide een dakkapel.
Tuin
Zonnige tuin op het zuiden gelegen met royale berging en een achterom.
Bijzonderheden
- Tuin op het zuiden
- Dubbele dakkapel
- Royale berging
- Nabij alle voorzieningen van Scherpenzeel
Plattegronden
180928123_1600568_prins_begane_grond_first_design_20260108_021f21.jpg
180928123_1600568_prins_eerste_verdiepi_first_design_20260108_6eac5d.jpg
180928123_1600568_prins_tweede_verdiepi_first_design_20260108_4e16aa.jpg
180928123_1600568_prins_begane_grond_tu_first_design_20260108_241e19.jpg
180928123_1600568_prins_berging_first_design_20260108_468370.jpg
180928123-294177706-se-146539822-1767857546773.png
180928123-294196705-se-146539822-1767857546773.png
180928123-294198487-se-146539822-1767857546773.png
180928123-294202081-se-146539822-1767857546773.png
180928123-294193306-se-146539822-1767857546773.png