Beschrijving
Let op! Een afspraak maken is niet nodig. De kijkdagen zijn donderdag 16 en vrijdag 17 oktober van 15:00 uur tot 17:00 uur.
Ben jij op zoek naar een goed onderhouden middenwoning met een enorm gave veranda? Wil je ook nog een grote schuur. Wil je een grote badkamer met ligbad, douche, toilet en wastafel? Wil je een aparte wasruimte en een zolder met dakkapel en wil je zonnepanelen? Kom dan eens kijken op de Prinsenlaan 64 en laat je verrassen door deze leuke woning.
Wij nemen je graag mee door de woning. Via de entree kom je in de hal met toegang tot het moderne toilet, meterkast en toegang naar de keuken. De muur tussen woonkamer en keuken is opengemaakt waardoor er een heerlijke ruimte is ontstaan. Vanuit de keuken en eethoek kijk je lekker de tuin richting de veranda met zijn druiven en gezellige aanblik. De keuken is voorzien van diverse inbouwapparatuur en heeft bergruimte. De woonkamer is aan de straatzijde gelegen en doordat de deur verplaatst is, heb je een lekkere lange wand waardoor je de woonkamer op diverse manier praktisch kunt indelen.
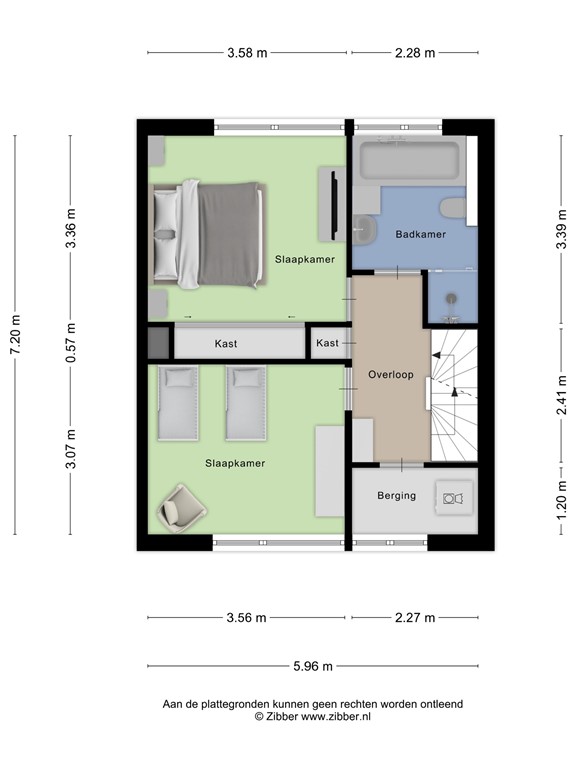
Op de verdieping is er een overloop met vaste kast, zijn er twee grote slaapkamers en is er badkamer met een ligbad, douche, toilet en wastafel. Daarnaast is er nog een aparte wasruimte.
Via een vaste trap kom je op de zolder. Deze zolder is voorzien van een dakkapel, heeft een voorzolder met cv-opstelling en toegang tot de derde slaapkamer.
Het woonoppervlak van de zolder mag volgens de NEN 2580 norm niet meegerekend worden. Aangezien de zolder wel als zodanig gebruikt wordt is het vermelde woonoppervlak incl. de zolderverdieping.
De tuin is fraai aangelegd en er is sprake van een heerlijke overkapping aan de berging. De berging is geïsoleerd, heeft een warmwater voorziening en is ook vanuit een achterpad bereikbaar.
Kortom ben jij op zoek naar een goed onderhouden en leuke middenwoning? En wil je medio volgend jaar in je eigen woning zitten? Kom dan kijken op de Prinsenlaan.
Indeling
Entree, toilet, meterkast, woonkamer en keuken.
Eerste verdieping
Overloop met vaste kast, 2 grote slaapkamers, badkamer en aparte wasruimte.
Tweede verdieping
Zolder voorzien van dakkapel, CV-opstelling en derde slaapkamer
Tuin
Fraai aangelegde tuin met overkapping en berging
Bijzonderheden
12 Zonnepanelen
Airconditioning
Sfeervolle veranda met tuinbank en kussens
Berging is geïsoleerd en heeft een warmwatervoorziening
Plattegronden
177830362-288971650-se-140674438-1759995809249.png
177830362-288988234-se-140674438-1759995809249.png
177830362-288988870-se-140674438-1759995809249.png
177830362-288989665-se-140674438-1759995809249.png
177830362-288989938-se-140674438-1759995809249.png