Beschrijving

LET OP OPEN HUIS GAAT NIET DOOR! 

Ben jij op zoek naar die uitgebouwde 2/1 kap met een jaren “30 uitstraling? Wil je altijd een plekje in de zon of juist schaduw? Afkoelen in de airco of relaxen in de plunge pool? Heb je een jongvolwassen kind die geen woning kan vinden en wil je toch graag privacy, wil je mantelzorg verlenen, een bed en breakfast beginnen of een heerlijke thuiswerkplek? Dan is het recent gerenoveerde bijgebouw met twee kamers en een badkamer de oplossing voor je. Ben je de drukte van de stad bijvoorbeeld zat en wil je wonen in een mooie rustige, groene, dorpse omgeving en met alle faciliteiten zoals winkels, scholen, restaurants en openbaar vervoer in de nabijheid? Dan is de Oude Barneveldseweg 39 de verrassende woning die je zoekt. 

Enkele kenmerken van de woning zijn:
-	Ruime woon-/eetkamer
-	Zeer diepe verzorgde en fraai aangelegde zonnige tuin 
-	Ibiza stijl verwarmde plunge pool in de tuin
-	Recent vernieuwde keuken
-	Bijgebouw is recent compleet gerenoveerd
-	Voldoende parkeergelegenheid op eigen terrein 
-	Laadpaal en airco aanwezig
-	Overkapping met lamellen
-	Centraal gelegen in de nabijheid van de A12/A1/A30 en A28

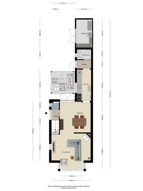
Wij nemen je graag mee door de woning: Via de entree kom je in de hal met het toilet en de trapopgang. De woonkamer is opgedeeld in een eetkamer en zitgedeelte, eigenlijk zoals het hoort bij een jaren “30 woning. De woonkamer is heerlijk licht, sfeervol en heeft een mooie erker. De is trapkast vanaf hier bereikbaar. Aangrenzend aan de eethoek bevindt zich de half open keuken en toegang tot een halletje, bijkeuken en toegang tot de tuin. Achter deze bijkeuken bevindt zich een ruime berging. 

In de tuin tref je het bijgebouw aan met vaste kasten, badkamer, slaapgedeelte en woonkamer aan. Dit bijgebouw kan op meerdere manieren worden gebruikt.  Door de voorzieningen in dit bijgebouw mag deze ruimte bij het woonoppervlakte geteld worden.

Op de eerste verdieping zijn er twee grote slaapkamers, een badkamer en een kleine (slaap)kamer. Hier kan eventueel een babykamer of werkplek gerealiseerd worden. De tweede verdieping is middels een vlizotrap bereikbaar en doet dienst als bergzolder. 

De tuin is ontzettend diep en dat terwijl je aan de rand van het centrum woont. De woning is heerlijk rustig gelegen met aan de voorzijde een autoluwe straat en naast de woning is alleen een doorgang voor fietsers gelegen. Stap je zelf op de fiets, dan ben je in twee minuten in het centrum.
Kortom een unieke woning op een heerlijke locatie. Kom je snel kijken?

Indeling

Entree, hal, toilet, eethoek, woonkamer (met meterkast in de hoek) keuken, hal, bijkeuken,  berging, bijgebouw

Eerste verdieping

Overloop, twee slaapkamers, inloopkast en badkamer

Tweede verdieping

Bergzolder

Tuin

Prachtige diepe tuin met verwarmd zwembad

Bijzonderheden

-	Ruime woon-/eetkamer
-	Zeer diepe verzorgde en fraai aangelegde zonnige tuin 
-	Ibiza stijl verwarmde plunge pool in de tuin
-	Recent vernieuwde keuken
-	Bijgebouw is recent compleet gerenoveerd
-	Voldoende parkeergelegenheid op eigen terrein 
-	Laadpaal en airco aanwezig
-	Overkapping met lamellen
-	Centraal gelegen in de nabijheid van de A12/A1/A30 en A28
-  Huurketel € 36.74 per maand

Kenmerken