Beschrijving

De Nieuwe Koepel
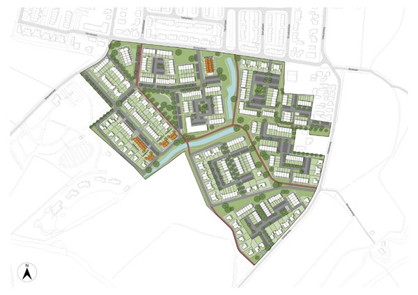
Aan de groene zuidzijde van Scherpenzeel wordt de nieuwbouwwijk De Nieuwe Koepel gerealiseerd. Het eerste deelgebied omvat grondgebonden woningen, variërend van hoek-, middenwoningen tot rug-aan-rug en halfvrijstaande woningen.

De wijk kenmerkt zich door de unieke combinatie van hoogwaardige architectuur en duurzaamheid. Wonen in De Nieuwe Koepel biedt een unieke kans om in een kindvriendelijke buurt te wonen op korte afstand van winkels, scholen, sport-, uitgaans- en zorgfaciliteiten.

Wonen in De Nieuwe Koepel
Volop genieten van het leven, elke dag opnieuw. Alles wat u daarvoor nodig hebt, vindt u in De Nieuwe Koepel in Scherpenzeel. Hier woont u in een comfortabele en eigentijdse omgeving, waar duurzaamheid en energiezuinigheid centraal staan. Een plek waar u kunt genieten van rust en ruimte, met alle voorzieningen binnen handbereik.

Spelen, fietsen, ontdekken – kinderen kunnen hier onbezorgd buitenspelen in een veilige en kindvriendelijke woonomgeving. Met voorzieningen zoals winkels, restaurants en supermarkten op korte afstand en een basisschool op loopafstand, biedt De Nieuwe Koepel alles voor een aangename woonbeleving. Hier woont u centraal, met alles binnen handbereik. Dít is wonen zoals u het wilt.

Bijzonderheden

Duokoop mogelijk! 
Kopersdeel € 304.950,-, Duokoop-deel € 45.000,- Volledig eigendom € 344.950,-.

Schrijf u zich in voor een rug aan rug woning? Er geldt voor deze woningen een zelfbewoningsplicht. De koper is verplicht het registergoed daadwerkelijk als hoofdbewoner zelf te bewonen, of door eerstegraads bloed- of aanverwanten te laten bewonen voor de minimale duur van 5 jaar, te rekenen vanaf de datum waarop de bewoner van het betreffende registergoed is ingeschreven in de Basisregistratie Personen.

Kenmerken