Beschrijving
Let op! Een afspraak maken is niet nodig. Je bent welkom op woensdag 29 en vrijdag 31 oktober tussen 15 uur en 17:00 uur.
Aan de Haverkamp 11 is te koop gekomen deze goed onderhouden hoekwoning met:
- Energielabel A
- Eigen oprit
- Garage
- Overkapping
- Zonnepanelen (10 stuks / 2022)
- Vloerverwarming woonkamer, keuken en hal
- Badkamer en toilet 2024
- Diepe zonnige tuin op het zuid oosten
- Airco op begane grond en zolder
Wij nemen je graag mee door deze woning: Via de entree kom je in de hal met meterkast (automaten), modern toilet en grote trapkast. De keuken bevindt zich aan de voorzijde en is uit 2010. (vaatwasser 2024 / fornuis 2023) en de woonkamer is tuingericht aan de achterzijde. Wat deze woning zo fijn maakt is het raam in de zijgevel waardoor je een heerlijk lichte woonkamer hebt.
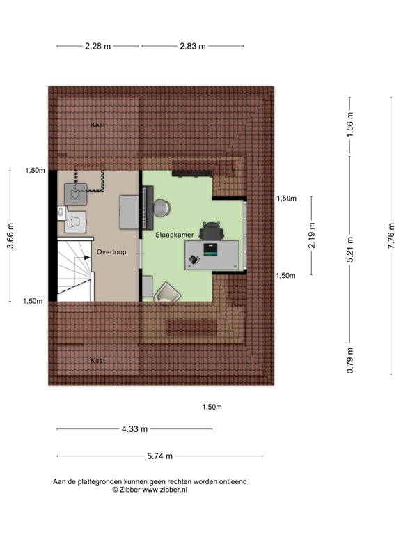
Op de eerste verdieping is er een overloop met toegang tot drie goede slaapkamers en een badkamer. Doordat de hoekwoning net 30 centimeter breder zijn dan de middenwoningen zie je dat gelijk goed terug in de slaapkamers. De badkamer is een plaatje en is nog nagenoeg nieuw. In de badkamer is er een inloopdouche, wastafel meubel, tweede toilet, infra roodpaneel en een design handdoeken radiator aanwezig. Via een vaste trap kom je op de zolder met een voorzolder waar je de cv-ketel, wasmachine, airco, mechanische ventilatie en omvormer van de zonnepanelen aantreft en er is toegang naar de 4de slaapkamer die op de kopse kant een driehoeksdakkapel heeft.
De tuin is zeer verzorgd aangelegd en heeft een veranda aan de zijkant en achterin in de tuin vindt je de garage die goed bereikbaar is en ook een loopdeur aan de zijkant heeft.
Kortom ben jij op zoek naar het complete plaatje? Dan is deze woning zeker een woning die je gezien moet hebben.
Indeling
Entree, hal, toilet, meterkast, trapopgang, toegang tot de woonkamer, keuken, achtertuin en garage.
Eerste verdieping
Overloop, drie slaapkamers en badkamer voorzien van ligbad, douche, tweede toilet en wastafel.
Tweede verdieping
Voorzolder met CV-opstelling, witgoed aansluitingen en zolderkamer.
Tuin
Groene, zonnige achtertuin op het zuid-oosten met toegang tot de garage.
Plattegronden
178196377_1585928_haver_begane_grond_first_design_20251018_f3c07f.jpg
178196377_1585928_haver_eerste_verdiepi_first_design_20251018_c648b8.jpg
178196377_1585928_haver_tweede_verdiepi_first_design_20251018_5fff56.jpg
178196377_1585928_haver_berging_first_design_20251018_3af079.jpg
178196377_1585928_haver_begane_grond_tu_first_design_20251018_eea97e.jpg
178196377_1585928_haver_overkapping_first_design_20251018_a19df0.jpg
178196377-289605349-se-141390565-1760802166685.png
178196377-289627369-se-141390565-1760802166685.png
178196377-289627939-se-141390565-1760802166685.png
178196377-289628245-se-141390565-1760802166685.png
178196377-289628296-se-141390565-1760802166685.png
178196377-289629922-se-141390565-1760802166685.png