| Prijs | € 895.000,- k.k. |
| Type object | Woonhuis, eengezinswoning, vrijstaande woning |
| Perceeloppervlakte | 378 m² |
| Woonoppervlakte | 148,8 m² |
| Aanvaarding | In overleg |
| Status | Nieuw in verkoop |
Bent u op zoek naar een zeer royale vrijstaande woning met oprit en garage? Wenst u ook een veranda, zonnepanelen en maar liefst vijf slaapkamers en een royale luxe badkamer. De woning is voorzien van domotica, airco en vloerverwarming begane grond. Wij nemen u graag mee door de woning: Via de overdekte entree komt u in de hal met het toilet, meterkast, trapopgang en toegang tot de woonkamer. De woonkamer is aan de voorzijde van de woning gelegen en hierdoor is er een prettig uitzicht richting weilanden en de lokale volkstuinen. De keuken is een open keuken met ruimte voor een zes persoonstafel. De keuken is in een L-vormige opstelling geplaatst en van alle gemakken voorzien. Vanuit de keuken heb je een fijn contact met de tuin en ook toegang tot de inpandige garage. De garage is thans in gebruik als hobbyruimte. Ook deze ruimte is goed verwarmd en geïsoleerd. Vanuit de garage heb je ook toegang tot de veranda. Op de eerste verdieping is er een royale overloop met toegang tot vier slaapkamers en een badkamer. De ouder slaapkamer is zeer royale en hotelwaardig qua afwerking. De badkamer is recent vervangen en prachtig vormgegeven en lekker ruim. Daarnaast zijn er twee goede slaapkamers en een slaapkamer/werkkamer boven de garage. Via een vaste trap kom je op de tweede verdieping met een overloop met een grote vaste kast en een ruime en gezellig zolderkamer. Tot slot is de tuin met zorg aangelegd en is er ook een fietsenberging gerealiseerd. Kortom bent u op zoek naar een royale vrijstaande woning? Een woning die in dit gedeelte van Scherpenzeel maar zelden beschikbaar komt? Dan is dit uw kans.
Begane grond: entree, hal, toilet, meterkast, straatgerichte woonkamer, eethoek, keuken, garage/bijkeuken, overkapping met schuurtje, tuin en fietsenberging.
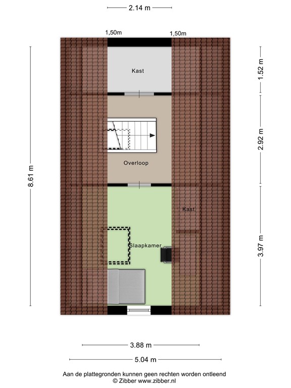
Overloop, vier slaapkamers, badkamer met ligbad, inloopdouche, zwevend toilet, dubbele wastafel en vloerverwarming.
Voorzolder, grote bergkast en slaapkamer
Fraai aangelegde en royale achtertuin, met veranda en bergruimte.
Royale vrijstaande woning Zonnepanelen Eigen oprit en garage Vrij uitzicht Luxe badkamer met inloopdouche en ligbad
| Referentienummer | 05367 |
| Vraagprijs | € 895.000,- k.k. |
| Inrichting | Niet gestoffeerd |
| Inrichting | Niet gemeubileerd |
| Status | Nieuw in verkoop |
| Aanvaarding | In overleg |
| Aangeboden sinds | Maandag 17 november 2025 |
| Type object | Woonhuis, eengezinswoning, vrijstaande woning |
| Soort bouw | Bestaande bouw |
| Bouwperiode | 1988 |
| Dakbedekking | Dakpannen |
| Type dak | Zadeldak |
| Keurmerken | Energie prestatie advies |
| Isolatievormen | Ankerloze spouwmuren Dakisolatie HR-glas Muurisolatie Vloerisolatie Volledig geïsoleerd |
| Perceeloppervlakte | 378 m² |
| Woonoppervlakte | 148,8 m² |
| Inhoud | 629 m³ |
| Oppervlakte overige inpandige ruimten | 20,7 m² |
| Oppervlakte externe bergruimte | 25,5 m² |
| Oppervlakte gebouwgebonden buitenruimte | 17,7 m² |
| Aantal bouwlagen | 3 |
| Aantal kamers | 6 (waarvan 5 slaapkamers) |
| Aantal badkamers | 1 (en 1 apart toilet) |
| Ligging | Aan rustige weg In bosrijke omgeving In woonwijk Nabij school Vrij uitzicht |
| Type | Achtertuin |
| Hoofdtuin | Ja |
| Oriëntering | Zuiden |
| Heeft een achterom | Ja |
| Staat | Prachtig aangelegd |
| Energielabel | A |
| CV ketel | Bosch |
| Warmtebron | Gas |
| Bouwjaar | 2007 |
| Combiketel | Ja |
| Eigendom | Eigendom |
| Aantal parkeerplaatsen | 2 |
| Aantal overdekte parkeerplaatsen | 1 |
| Warm water | CV-ketel |
| Verwarmingssysteem | Centrale verwarming Houtkachel Vrijstaande verwarming |
| Ventilatie methode | Mechanische ventilatie |
| Keukenvoorzieningen | Inbouwapparatuur |
| Badkamervoorzieningen | Inloopdouche Ligbad Toilet Wastafel Wastafelmeubel |
| Parkeergelegenheid | Inpandige garage |
| Glasvezelaansluiting aanwezig | Ja |
| Tuin aanwezig | Ja |
| Heeft een garage | Ja |
| Heeft domotica | Ja |
| Heeft schuur/berging | Ja |
| Heeft een dakraam | Ja |
| Heeft zonwering | Ja |
| Heeft zonnepanelen | Ja |
| Heeft ventilatie | Ja |
| Kadastrale aanduiding | Scherpenzeel D 3981 |
| Perceeloppervlakte | 378 m² |
| Omvang | Geheel perceel |
| Eigendomsituatie | Eigen grond |
| Kadastrale aanduiding | |
| Eigendomsituatie | Eigen grond |