Beschrijving
Ben jij op zoek naar een goed onderhouden deels uitgebouwde hoekwoning met oprit en garage? Wil je een ruime zolder met dakkapel en wil jij het eerste kwartaal van 2026 al in je eigen woning kunnen zitten? Kom dan eens kijken op de Burg. H. van Konijnenburglaan 35 en laat je verrassen door de ruimte die je in deze woning vind. Afspraken voor bezichtigingen worden ingepland vanaf de eerste week van januari!
Wij nemen je graag mee door de woning: Via de entree kom je in de hal met toegang tot het toilet, trapkast met meterkast en heb je toegang tot de woonkamer. De woonkamer is straat gericht en door de grote raampartij lekker licht. De eethoek bevindt zich aan de achterzijde en heeft openslaande deuren naar de tuin. Doordat de keuken naar de aanbouw is verplaatst heb je een heerlijke extra hoek tot je beschikking. In de woonkamer tref je ook een sfeervolle en strak vormgegeven gashaard aan. De keuken in de uitbouw is voorzien van een vijf pits gaskookplaat, afzuigkap, oven, vaatwasser en koelkast.
Op de eerste verdieping zijn er twee royale en één wat kleinere slaapkamer, ook deze kamer is nog steeds van een mooi formaat. De ouderslaapkamer is voorzien van een grote vaste kastenwand. In de badkamer is er een douche, dubbele wastafel in een meubel, een tweede toilet en een designradiator. Op de tweede verdieping tref je een voorzolder met de aansluiting voor de wasmachine en droger en cv-ketel. Doordat er een dakkapel is geplaatst heb je hier de beschikking over een vierde royale slaapkamer of thuiswerkplek.
De tuin is het afgelopen jaar opnieuw aangelegd en is strak en onderhoudsvriendelijk. De tuin is via een achterom en via de garage bereikbaar. De garage heeft zijn ingang aan de Rembrandtlaan en voor de garage heb je ook nog je eigen parkeerruimte. Ook naast het huis is er de mogelijkheid om je auto te parkeren.
Kortom ben jij op zoek naar die royale en goed onderhouden hoekwoning? Dan is deze woning zeker een bezichtiging waard.
Indeling
Entree, toilet, trapopgang, toegang tot woonkamer, keuken
Eerste verdieping
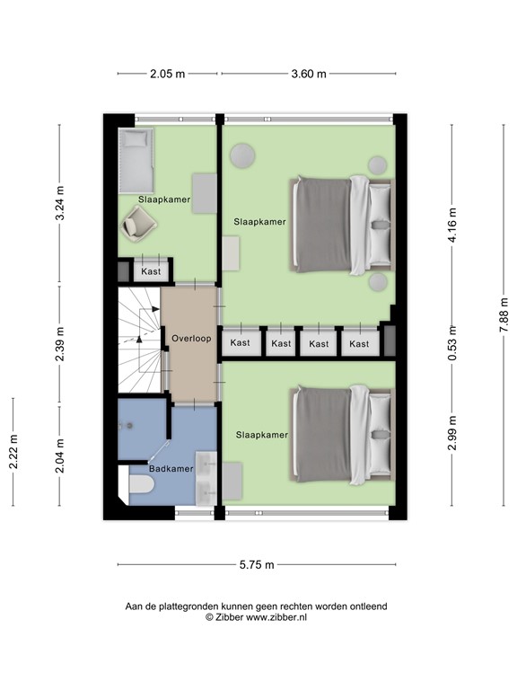
Overloop met 3 slaapkamers en een badkamer
Tweede verdieping
Voorzolder met witgoedaansluitingen, cv-installatie, slaapkamer voorzien van een dakkapel.
Tuin
Onderhoudsvriendelijke tuin met achterom en garage.
Bijzonderheden
- Goed onderhouden
- Eigen oprit
- Garage
- Dakkapel
- Onderhoudsvriendelijke tuin
Plattegronden
179455090-291690298-se-143655955-1763448145962.png
179455090-291714265-se-143655955-1763448145962.png
179455090-291717379-se-143655955-1763448145962.png
179455090-291715885-se-143655955-1763448145962.png
179455090-291724042-se-143655955-1763448145962.png